【】
双绞线的使用由来已久,在很多工业控制系统中和干扰较大的场所以及远距离传输中都使用了双绞线,我们今天广泛使用的局域网也是使用双绞线对。双绞线之所以使用如此广泛,是因为它具有抗干扰能力强、传输距离远、布线容易、价格低廉等许多优点。双绞线对信号也存在着较大的衰减,视频信号如果直接在双绞线内传输,也会衰减很大,所以视频信号在双绞线上要实现远距离传输,必须进行放大和补偿,双绞线视频传输设备就是完成这种功能。加上一对双绞线视频收发设备后,可以将图象传输到1至2km。双绞线和双绞线视频传输设备价格都很便宜,不但没有增加系统造价,反而在距离增加时其造价与同轴电缆相比下降了许多。所以,监控系统中用双绞线进行传输具有明显的优势:
1)传输距离远、传输质量高。由于在双绞线收发器中采用了先进的处理技术,极好地补偿了双绞线对视频信号幅度的衰减以及不同频率间的衰减差,保持了原始图象的亮度和色彩以及实时性,在传输距离达到1km或更远时,图象信号基本无失真。如果采用中继方式,传输距离会更远。
2)布线方便、线缆利用率高。一对普通电话线就可以用来传送视频信号。另外,楼宇大厦内广泛铺设的5类非屏蔽双绞线中任取一对就可以传送一路视频信号,无须另外布线,即使是重新布线,5类缆也比同轴缆容易。此外,一根5类缆内有4对双绞线,如果使用一对线传送视频信号,另外的几对线还可以用来传输音频信号、控制信号、供电电源或其它信号,提高了线缆利用率,同时避免了各种信号单独布线带来的麻烦,减少了工程造价。
3)抗干扰能力强。双绞线能有效抑制共模干扰,即使在强干扰环境下,双绞线也能传送极好的图象信号。而且,使用一根缆内的几对双绞线分别传送不同的信号,相互之间不会发生干扰。
4)可靠性高、使用方便。利用双绞线传输视频信号,在前端要接入专用发射机,在控制中心要接入专用接收机。这种双绞线传输设备价格便宜,使用起来也很简单,无需专业知识,也无太多的操作,一次安装,长期稳定工作。
5)价格便宜,取材方便。由于使用的是目前广泛使用的普通5类非屏蔽电缆或普通电话线,购买容易,而且价格也很便宜,给工程应用带来极大的方便。
【】
某厂区一共有48个监控点,由8个云台摄像机,40个直角固定摄像机组成。所有监控点均在厂区内部,既有较集中的监控点,又有较分散的监控点,所有的点拉线距离最远不超过1200米,要求传输的质量高,图像效果好,布线简单、科学。
【工程简要分析】
由于所有监控点均在厂区内部,既有较集中的监控点,又有较分散的监控点,所有的点拉线距离最远不超过1200米,就目前来看,性价比最高的就是采用双绞线传输方式来实现图像信号的传输,深圳市优特普科技有限公司的双绞线传输设备完全可以解决问题,很好的实现高质量的视频信号传输。0-600米的地方可以采用无源双绞线发射器,700米以上的可以采用有源的发射器来发射,共需要48路不同规格的发射器;接受端采用6台8路有源双绞线视频接收器-UTP108AR来接收信号,中间采用质量较好的非屏蔽超5类双绞线来传输,1200米内都能保证有优质的图像效果。
【】
本示意图不代表任何一家的工程示意图,仅供学习交流。

【】
发射端1:――UTP101P无源双绞线视频发射器
发射端2:--4路、8路无源双绞线视频传输器
发射端3:--单路有源双绞线视频发射器UTP101AT
优特普双绞线传输系列产品中可作为发射端的设备目前有上述3类4种,UTP102P是一款单路无源双绞线视频发射器,UTP104P和UTP108P是无源多路传输器,他既可以作为发射器使用,也可以作为接收器使用;UTP101AT是一款单路有源双绞线视频发射器。我们采取这些和UTP101AR、UTP104AR或者UTP108AR等接收设备组合使用来传输视频信号,可根据传输距离来设置接收器的拨码开关,使传输效果达到最佳效果。由于无源发射UTP102P的体积较小,又是塑胶外壳,在防雷上逊色于UTP104P、UTP108P以及有源的发射器UTP101AT,适合在室内布线比较多的场合下使用,如果室外布线比较多,应当考虑使用UTP104P、UTP108P或者有源发射器。
接收端1――8路有源双绞线视频接收器UTP108AR
接收端2――4路有源双绞线视频接收器UTP104AR
接收端3――单路有源双绞线视频接收器UTP101AR
接收端4:--单路、4路、八路无源传输器
优特普双绞线传输器系列的接收器有许多种,有的同一种设备还分高端和中端产品,应当根据工程的实际情况来确定选用所需设备。UTP108AR是一款8路有源收设备,UTP104AR是一款4路有源双绞线接收设备,UTP101AR是一款单路双绞线视频接收设备,这些有源的设备都支持1200米的传输距离,如果发射端是有源的,就可以传输1200米,如果发射端是无源的,就可以传输600米,当五类或五类以上非屏蔽双绞线的线材质量好时,传输距离可以适当增加。工程中可根据传输距离简单设置发送器拨码开关和接收器的拨码开关进行调节,使显示效果最佳。需要注意的是:当使用无源的传输器作为接收器时,发射器一般都应采用无源的,也就是当发射器是有源的设备时,一般不搭配无源的接收器。双绞线传输设备的调试都比较简单、方便,十分适合在安防、公共视频广播系统 、远程多媒体教育、医疗、军事等领域广泛应用。
发射端和接收端搭配表:

【】
工程布线中的几种常用的接法
(1)一根网线传一路信号:

这种方法相对较浪费,但是如果是云台,我们可以把剩下的某一对线当控制信号线。
(2)一根网线传输4路信号:

这种方式较节约,一般使用在有集中在一起的固定摄像头的情形中。
(3)一个网线传输4路信号

先将各个点用一对双绞线(电话线)拉到A处,再通过主干道传输到接收器。这种方式较灵活,一般使用在四个较分散的点上,这种方式很节约线才,但是要注意接头的处理,如:A点。
(4)先集中后传输

先把各地的视频信号通过同轴线拉到一个点,集中起来使用一台多路发射器发射,或者在这个点上安装一个防水的箱子,把单路发射器都集中安装到箱子中作为发射端。当前端摄像头离这里过远如超出100米时,建议不采用这种方案,如果需要选用这种方案,就必须选用较好的同轴视频线缆。
以上几种方法应当综合起来应用,让整个系统最优化。
【】
一箱网线为305米,如果距离超过305米就需要把网线对接。可以参考下面的办法:
1、剥线。

2、接线:同样的颜色对接后要焊接

3、单线包扎:绝缘、防水。

4、整根线包扎:绝缘、防水、抗拉。

【】
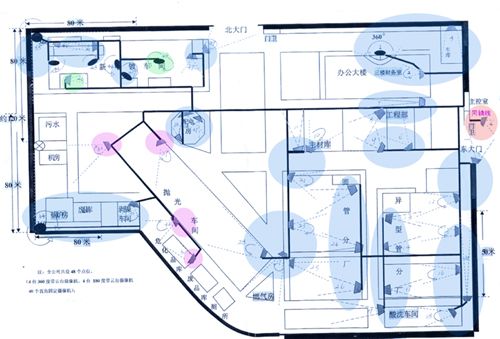
本示意图不代表任何一家的工程示意图,仅供学习交流。

(1)我们把整个工程先划分为若干个区域,每一个蓝色区域内的为一个单元,可以考虑用一根双绞线来布设;绿色区域为一个单元,也考虑一根双绞线来布设,可以采用第三穜接线法;粉红色区域采用共缆传输方法,也就是方法2。
(2) 近距离的可以采用同轴线,但是距离在50米以上的,双绞线的性价比更高。
【布线示意图】

【】
目前,许多朋友在使用双绞线传输设备时均感到稳定性较差,造成这种普遍印象的原因有很多,主要有两个方面:一是一些劣质产品防雷、抗过压的能力不好;二是工程在安装时未充分做好防雷接地的工作。选用产品时尽可能选用通过CE、CCC认证的品牌,这些产品的防雷能力都达到国家要求的标准,这里主要介绍工程上的防雷施工建议。
实际中,直接被雷击毁的情形十分少,绝大部分都是由于使用双绞线传输视频的距离往往比较长,整条线穿过的区域较大,雷雨天环境中电磁场的变化剧烈,在线上产生的感应电流超过了设备能承受的范围,如果没有做好接地工作,积累在设备上的能量就象堵在大坝上的洪水,找不到通畅的排泄口就会冲毁大坝,导致设备损坏。优特普产品的防雷方案和防雷元件均来自专业的防雷机构,设备可以抵抗4000V雷击的最高国际标准,可靠性强,只要按弱电工程要求在施工中做好防雷接地工作设备就可以平安无事。

优特普产品需要作防雷处理的均有明显的接地标识,需要接地的就一定要可靠接地。

:
1、提高防雷意识,做好资金准备。防雷不是可大可小、可有可无的的一般装饰,设计方案时要有“以防万一”的未雨绸缪的强烈意识,一定要把双绞线传输设备的防雷成本设计到方案中,保证工程款分配方案中有防雷专项资金,为实施防雷做好资金准备。
2 、端正防雷态度、保证施工安全。在施工现场要把防雷工作做好主要要靠现场施工人员,由于接地工作在施工当时很难看出接地的效果,如果态度不认真常会犯一些低级错误,常见的有:(1)接地线只接到设备接地端口,地线的另一段未接到接地点上;(2)接到设备端口的线缆的外包皮未拨干净,端口的螺丝扣卡住的是塑胶皮层,实际并未接触到导线的金属体;(3)把从设备引出来的接地线接到机房的机架上,但机架却没有接到可靠的大地上;(4)把电源的负电接到接地端口上,虽然能正常工作,但一打雷就烧毁等等。
3、因地制宜,寻找合适可靠的接地点。常见的接地点可大致分为人工接地体和自然接地体,详细了解请点击【防雷知识】。
【成本计算】
电话优特普索要报价单:0755-83898026
发邮件给优特普索要报价单:utpvideo@126.com
通过QQ获取报价单:364821136
通过MSN获取报价单:niehd@hotmail.com






















小鸟显控系统
卡莱特处理器
威创显控系统
Creator矩阵
WAP手机版
建议反馈
官方微博
微信扫一扫
PjTime